7-08-2008 
7-08-2008 
Здравствуйте всем!
А не подскажете, на Харриере можно как-то сделать, чтобы закрывались/открывалсь ВСЕ стёкла, пусть хотябы от ключа в дери,а не с кнопки. А то у меня только водительское стекло так работатет Sad

_________________

T.Exiv 1994 2L TR-X
H.Integra 1994 1.6L 3D-ZXi
S.Forester 1998 2L S/20
T.Harrier 1998 3L Four S

  •  
7-08-2008 
7-08-2008 
теоритически можно - вопрос в подключении. Нужна либо схема, либо толковый электрик

_________________

Prime mover

  •  
7-08-2008 
7-08-2008 
Ни того ни другого в каменогорске нет.....

_________________

***************
Лучше молчать и слыть дураком,
чем заговорить и сразу развеять все сомнения в этом......

  •  
8-08-2008 
8-08-2008 
Да уж...придётся на сигналке подключать
спасибо Smile

_________________

T.Exiv 1994 2L TR-X
H.Integra 1994 1.6L 3D-ZXi
S.Forester 1998 2L S/20
T.Harrier 1998 3L Four S

  •  
11-08-2008 
11-08-2008 
F006U писал(а):
Здравствуйте всем!
А не подскажете, на Харриере можно как-то сделать, чтобы закрывались/открывалсь ВСЕ стёкла, пусть хотябы от ключа в дери,а не с кнопки. А то у меня только водительское стекло так работатет Sad
Увы, нельзя! Даже теоретически. Т.к. функция автозакрываения/открывания работает только на водительской двери. На остальных дверях что бы открыть/закрыть окно надо удерживать кнопку.
ЗЫ: Относится только к Харриерам, на Рексах все стекла auto.

_________________

Прикольная эта штука - жизнь (с)

  •  
11-08-2008 
11-08-2008 
Хищный писал(а):
Увы, нельзя! Даже теоретически
теоритически можно поставить доводчики от сигнализации, которые будут поднимать стекла в режиме AUTO, вот аннотация на один из них:
Цитата:
Модуль предназначен для управления двумя стеклоподъемниками в двух направлениях. Он подключается к охранной системе и значительно расширяет ее сервисные функции.Управление модулем осуществляется по цифровой шине.

Модуль управляется командами охранной сигнализации, а также кнопками управления стеклоподъемниками. При постановке автомобиля на охрану модуль автоматически закроет стекла, запомнив их положение, и откроет их в прежнее положение при снятии с охраны, если стоянка была непродолжительной (менее часа). Из салона можно управлять стеклами короткими нажатиями кнопок (система "в одно нажатие" - one touch), что весьма удобно. Один раз нажал на кнопку и стекло начало опускаться (подниматься).

В любой момент еще одним нажатием можно его остановить в желаемом положении. Либо можно, нажав на кнопку и удерживая ее, опустить (поднять) стекло до нужного положения.
Предусмотрена возможность опускать (частично или полностью) стекла командой с брелока, находясь вне автомобиля, например, летом для проветривания салона.

Можно заблокировать кнопки в салоне, предотвратив баловство детей со стеклоподъемниками. Если во время поднятия стекла ребенок высунет в окно руку или голову, то модуль остановит движение стекла, предотвратив возможную травму.

Модуль автоматически определяет тип (полярность) управляющих сигналов охранной сигнализации. Есть возможность оперативно отменять автоматическое поднятие стекол при постановке на охрану и программировать их частично открытое "комфортное" положение. При обрыве троса, а также при коротком замыкании в цепи электропривода, электродвигатель стеклоподъемника автоматически отключается. Чтобы исключить ложные срабатывания сигнализации разработчики предусмотрели возможность отключения ее датчиков на время движения стекол.

_________________

Prime mover

  •  
11-08-2008 
11-08-2008 
DmitriyZ писал(а):
Хищный писал(а):
Увы, нельзя! Даже теоретически
теоритически можно поставить доводчики от сигнализации, которые будут поднимать стекла в режиме AUTO
Я имел ввиду что нельзя с родными устройствами так сделать. Внешние доводчики проблему решат, без вопросов.

_________________

Прикольная эта штука - жизнь (с)

  •  
25-08-2008 
25-08-2008 
Пролистал тему, получается вопрос остается пока открытым?
Вообще интересно получается, вторая машина у меня Mercedes C-class (W202) там, если на ключе кнопку закрытия/открытия (она там одна) долго держишь окна закрываются (причем автомат только на передних стеклах на опускание). Так вот когда сигнализацию ставил (Тамагавк Х3) установщики без каких либо доп. блоков и лишнего геммора сделали так, что при постановке на охрану все окна закрываются. Получается, что в мерсе и лехе настолько разная технология и алгоритм, что никак не получается это сделать.

_________________

Per aspera ad astra...

  •  
25-08-2008 
mikkim писал(а):
Получается, что в мерсе и лехе настолько разная технология и алгоритм, что никак не получается это сделать.
У меня Х-5 стоит сигналка(томагавк).Закрывается все,даже люк.
  •  
25-08-2008 
25-08-2008 
mikkim писал(а):
Получается, что в мерсе и лехе настолько разная технология и алгоритм, что никак не получается это сделать
все можно, было бы желание и необходимые знания. Если у Камиля будет на этой неделе время - то, возможно, добьем этот вопрос

_________________

Prime mover

  •  
7-09-2008 
7-09-2008 
Доброго всем времени суток.
Являюсь обладателем автомашины Lexus RX-300 (американец) 2001г.
На форме я новичок. По натуре стараюсь все доработки в электронике делать сам.
Самостоятельно установил сигнализацию Шерхан-7 (при личной настройки всех систем, включая датчики – ни одного ложного срабатывания), где подключил все ее функции, включая автозапуск двигателя с брелока.
По поводу данной темы …… С ключа у меня так и не получилось закрывать все окна и люк, но подсказали что именно в официальном сервис центре Toyota – проблему решают путем замены (прошивки) импульсов. Лично я данную проблему решил при помощи сигнализации (подходит любая сигнализация, где есть задержка на закрытие 5-20 секунд).
Все управление взял от разъема управления в двери водителя путем подключения к проводам разъема. Правда там есть некоторые нюансы… о которых готов поделиться….
Забегая вперед скажу, что из деталей необходимо «реле» и несколько диодов.

P.S. От идеи решить вопрос путем работы над ключом отказался сразу, так как уже писалось ранее что в Lexus-e нет как таковой сигнализации (кроме имобилайзера)…. Поэтому решил разрешить задачу при помощи сигнализации с обратной связью.
  •  
7-09-2008 
7-09-2008 
Как всё запутано.......

_________________

***************
Лучше молчать и слыть дураком,
чем заговорить и сразу развеять все сомнения в этом......

  •  
16-10-2009 
16-10-2009 
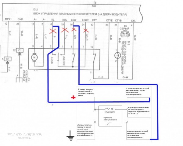
После трехдневных экспериментов, добился самого простого результата подключения родных доводчиков стекол, проделать эту операцию сможет каждый. Люди подскажите как закинуть схему сюда.

И так ближе к делу. Из деталей нам потребуется одно реле имеющее одну пару нормально замкнутых контактов.
1 Снимаем обшивку передней водительской двери
2 В левом нижнем углу двери находим жгут проводов идущий к замку двери, разрезаем изоляцию жгута.
3 Находим четыре тонких провода;
серый
серый с красной полосой
розовый
розовый с красной полосой
и разрезаем их пополам
4 Изолируем изолентой все четыре конца этих провода идущих в сторону замка. они нам не понадобятся.
5 Изолируем два провода идущих в другую сторону(в сторону переключателя стеклоподъемников) это;
розовый с синей полосой
серый с красной полосой
они нам также не понадобятся.
6 Берем любое реле с одной парой нормально замкнутых контактов и соединяем его по схеме ниже
[/img]
  •  
17-10-2009 
17-10-2009 
Чёт пока плохо понял Amd gmm

Ясно одно: блокировка замков с пульта становится невозможной....

Как сделать, чтобы поднимались стекла при закрытии машины

_________________

***************
Лучше молчать и слыть дураком,
чем заговорить и сразу развеять все сомнения в этом......

  •  
17-10-2009 
17-10-2009 
С пульта ты имеешь в виду родного на ключе, то да.
Все так!
С ключа механически точно стекла поднимать уже не будет,с пульта ключа не пробовал, его нет ,в принципе это уже и не нужно. Зато все на родных доводчиках будет. А замутил такую схему потому что при не разрезанной проводке, подавал управляющий сигнал на розовый провод, все закрывалось и стекла поднимались, но через секунд 30 врубалась родная сигналка и блокировала открытие, а при подачи минуса в течении 29 сек на серый провод родная сигналка не включается, и открытие от сигнализации нашей гарантированно.Все отлично работает!!! Very Happy
  •  
Реклама для незарегистрированных пользователей. Зарегистрироваться в Клубе
Новая тема  
Все форумы  »  Клуб Lexus RX  » Lexus RX/HARRIER I (1998-2003) Правила форумов