home skip_previous fast_rewind fast_forward skip_next
30-07-2015 
30-07-2015 
Всем доброго времени суток!
Эпопея с заменой тормозов началась почти год назад, тогда я прикупил суппорта UCF30 на 323диске от супры, проставки уже стояли на суппорте концы болтов были обрезаны и приварены к проставке(вообщем не съемные).
Долго не мог поставить, но пару месяцев назад поставил, приход от торможения конечно есть, но когда нажимаю тормоз, начинается сильное биение в руль. Проверив подвеску, приговорил тормозные диски, они были Б/У. Думаю куплю диски и не буду парится, НО не тут то было. Диски на супру идут левый правый разные(вентиляция разно-направленная) по цене от 12000руб за штуку (оригинал) и аналогов найти не смог. Зато для 334 диска аналогов много и ценник приятный. Взял проставки у знакомого чтобы скопировать, мастера который сделает за адекватные деньги пока найти не смог, решил хотя бы снять чертеж.

Передние тормоза celsior UCF30/31 на JZS160/161
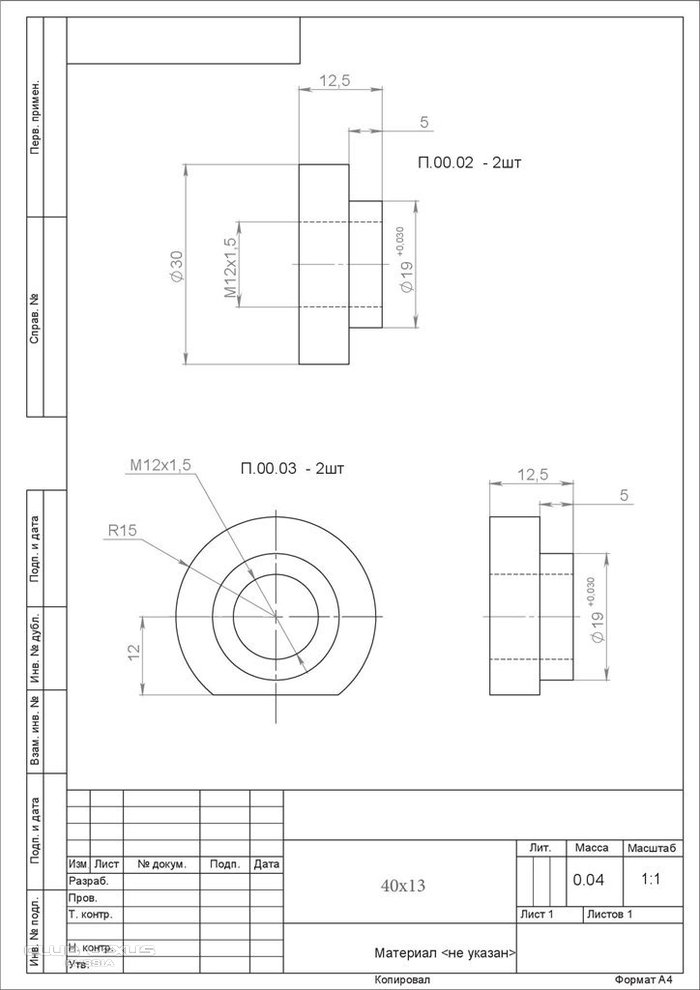
Материал RAMAX либо сталь 45

Передние тормоза celsior UCF30/31 на JZS160/161

Передние тормоза celsior UCF30/31 на JZS160/161
Материал нержавейка 40х13

Передние тормоза celsior UCF30/31 на JZS160/161

Тормозные диски Textar 92147800(левый) и Textar 92147900(правый)
Оригинальные болты для суппорта 90105-14151(4штуки), нужно обрезать до длинны как на чертеже(рис 4)
Еще нужно немного доработать внутреннюю часть суппорта болгаркой(по краям), чтобы диск не цеплял суппорт.
Сам проставки еще не делал, если есть толковый фрезер в СПБ который их сделает по хорошей цене буду признателен.
  •  
8-07-2022 
8-07-2022 
спасибо за чертежи
  •  
Реклама для незарегистрированных пользователей. Зарегистрироваться в Клубе
Новая тема  
Все форумы  »  Клуб Lexus GS  » Lexus GS II (1997-2004)  » Тормозная система Правила форумов