28-08-2015 
28-08-2015 
Или америкос Smile
  •  
29-08-2015 
29-08-2015 
Camel писал(а):
Странный у вас vin для канадца
Ну Ваш комментарий мне однозначно помог!
  •  
29-08-2015 
29-08-2015 
Для начала проверь приходит-ли напряжение на сидушку при включении подогрева.

_________________

RX330 4WD Ребриха

  •  
29-08-2015 
29-08-2015 
sankinwb писал(а):
Для начала проверь приходит-ли напряжение на сидушку при включении подогрева.
Логично! Пока пытаюсь найти какое сопротивление должно быть на датчике, чтобы исключить его из причин. Чтобы сиденье второй раз не разбирать.
  •  
1-10-2015 
1-10-2015 
Скоро зима, и потребуется греть попу, а подогрев водительского внезапно не работает.
В процессе ковыряния проблемы сделал массу ненужных телодвижений, и есть смысл вывалить нарытое чуть системнее, чем это может дать поиск.
Подогрев сидения в RXII устроен следующим образом:
1. Нагревательные элементы: многожильный провод без изоляции, уложенный мелкой змейкой в тонкую поролоновую пластину (два тонких слоя поролона склеены), сама пластина формой учитывает прошивку и крепление кожи сидения и насмерть соединена с собственно кожей (прошита). На фото - шкура, снятая с подушки, вид внизу.
Подогрев сидений ( ремонт, замена, вопросы)
Змейка хорошо видна на просвет фонариком, жилки провода очень мелкие, змейка частая, поэтому переломить собственно провод трудно, несмотря на то, что в левой боковой части подушки он измят довольно сильно.
Подогрев сидений ( ремонт, замена, вопросы)
2. Нагревательных элемента два - подушка и спинка, они имеют холодное сопротивление примерно 1-2 Ом каждый и соединяются последовательно (!) - двухконтактный разъем нагревателя спинки втыкается в жгут нагревателя подушки. В четырехконтактном разъеме жгута подушки на нагреватель идут крайние (более толстые) провода, два средних (желтые) - это термодатчик (размещенный в нагревателе точно под центром попы), его сопротивление 2-6 кОм в зависимости от температуры.
Подогрев сидений ( ремонт, замена, вопросы)
Разъем жгута подушки (зеленый) для проведения измерения можно получить, если освободить крепление сидения к полу (см. п.8 ), приподнять его, отогнуть "фартук" задней стороны сидения, завернутый под него сзади снизу и крепящийся лямками на крючки, и выдернуть разъем из контроллера.На фото жгута подушки виден желтый разъем нагревателя спинки.
Подогрев сидений ( ремонт, замена, вопросы)
Все это удобнее сделать со стороны заднего ряда кресел. Клемму аккумулятора снимать не нужно, поскольку потребуется двигать сидение вперед-назад для доступа к болтам крепления. Ярко-желтый разъем на следующем фото- подключение подушки airbag, его случайно не выдернуть, но пробовать не нужно.

3. Поскольку нагревающийся провод к излому весьма стоек, вероятное место обрыва (если он точно установлен измерением) - соединение с толстыми изолированными проводами, эти соединения находятся примерно под костями задницы, места пайки нагревательного провода к подводящим зафиксированы термоклеем (посему при демонтаже фен и термопистолет не помешают) - на предыдущем фото справа - оранжевый провод входит в кругляш термоклея.
4. Вся шкура подушки (попы) снимается, как это сделать - подробно в ветке "Обсуждение подогревов сидений ( переднего и заднего)" club-lexus.ru/f...wtopic.php?p=3351496#3351496 . Работа нудная, неудобная, требует места и времени. Я сделал ее зря, поскольку предполагал параллельное соединение и поленился внимательно померять (выдернул фишку спинки и получил "как бы обрыв" в четырехконтактном разъеме сидения.
5. Под передним краем сидения на плоском лепестке защелкнут корпус размером со спичечный коробок
(в левой части снимка, вид от педалей)-
Подогрев сидений ( ремонт, замена, вопросы)
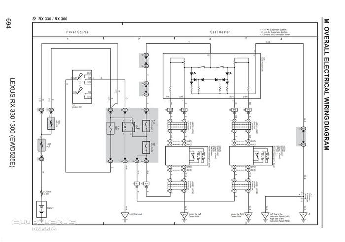
- это "контроллер нагрева" 87501-05010/AE010 (87864-05010). В него втыкаются - четырехконтактный разъем (зеленый) жгута нагревателя подушки и четырехконтактный разъем (серый) - на блок регулятора (это на самом деле 15 см перемычка , заканчивающаяся совсем рядом разъемом S33(34), который можно увидеть на схеме st.club-lexus.ru/attach/u/ee360dcb.jpg) Все прежде упомянутые разъемы на схеме подразумеваются внутри блока нагревателя, хотя такой же узел на схеме Камри разрисован вполне внятно.
6. Электрически: Собственно мощное питание подведено к сидению через блок предохранителей. Масса подведена от терминала J46, расположенного рядом с белым разъемом S33. От панельки регуляторов (что между магнитолой и ручкой селектора КПП) в разъем S33 приходят два провода: один подает 12В при "включении" щелчком, второй - напряжение управления нагревом, изменяющееся от поворота ручки. На контроллер питание (крайние провода) и управление (средняя пара проводов) приходят в сером четырехконтактном разъеме.
7. Функция "контроллера нагрева" 87501-05010 довольно примитивна, все работает как утюг: включается нагрев, по достижении термодатчиком температуры, соответствующей установленному напряжению управления нагрев выключается. В моем случае не работал именно контроллер.
8. Для быстрого восстановления (и проверки) можно перекинуть контроллер с сидения пассажира - снять пластиковые накладки с лап сидений, выкрутить передние болты (головка на 14), ослабить на 2-3 оборота задние, приподнять сидение спереди, выдернуть разъемы зеленый и серый, снять контроллер с лепестка (защелка с обратной стороны, потребуется поддеть крохотной отверточкой, неудобно), поменяв, установить в обратной последовательности.
9. Контроллер 87501-05010 бъется поиском по магазинам по абсолютно негуманной цене, что уместно, если он оплавился в комок (такие фото можно найти), внутри у него секретная микросхемка, имеющая вполне доступный функциональный аналог, при наличии паяльника и некоторого опыта паяния ремонт выполняется за полчаса.

_________________

Останавливаться все же приходится, чтобы заменить колодки.

  •  
  • +7
1-10-2015 
1-10-2015 
Контроллер 87501-05010 (он же 85864-05010, он же 87501-AE010) можно отремонтировать, если он не поврежден механически и не обгорел.
Корпус имеет крышку на хорошо видимых защелках, при вдавливании их головок крышка снимается.
Далее необходимо распаять с удалением припоя из отверстий два ряда контактов - они одно целое с корпусом, после чего плата с микросхемой извлекается из корпуса контроллера.
Сдергиваем радиатор с микросхемы, выпаиваем с удалением припоя микросхему в корпусе TO-220-7, имя ее VN570, в природе не найти, заменить можно на AUIPS6021.
Вот здесь схема замены, старая ИМС, новая, плата и корпус:
Подогрев сидений ( ремонт, замена, вопросы)
Новая микросхема устанавливается вместо старой вот в такой интересной позе:
Подогрев сидений ( ремонт, замена, вопросы)
Черные прямоугольные элементы - 3 штуки - резисторы - необходимо удалить средний, помеченный красным (маркировка 392) - это можно сделать, разрезав дорожку в месте, указанном желтой стрелкой.
Подогрев сидений ( ремонт, замена, вопросы)

Насаживаем на микросхему радиатор, устанавливаем плату в корпус, запаиваем ножки разъемов,
после чего устанавливаем 2 новых резистора , как указано на фото: в позицию, нарисованную желтым (два варианта, в общем равнозначных) - резистор 0,125/0,25вт номиналом 10 кОм, в позицию, нарисованную красным - резистор 0,125/0,25вт номиналом 7,5 кОм,)
Подогрев сидений ( ремонт, замена, вопросы)

закрываем крышку.


Назначение контактов, вид на контроллер, как на задние части разъемов (доступные для втыкания тонких щупов мультиметра)
Подогрев сидений ( ремонт, замена, вопросы)

На этом фото видно место корпуса (прилив вверху), куда сзади входит плоский лепесток рамы сидения, корпус на лепестке фиксируется защелкой в центре (за отверстием для тонкой отвертки)

PS. Контроллер применяется на всех Авенсах, Сиенах, RXII , Хорях, и гибриде 400h.
Штука примитивная и крайне досадно, если сдохнет, ибо ездить попой на льду невозможно.
Так что возможность его быстрого и недорогого восстановления есть гут.

PPS. ИЗМЕНЕНО ПО РЕЗУЛЬТАТАМ ИЗМЕРЕНИЙ, скорректирован порог срабатывания (резистор 10 кОм) и исключен вариант пайки мелких (проще повторить)

_________________

Останавливаться все же приходится, чтобы заменить колодки.

  •  
  • +13
1-10-2015 
1-10-2015 
Однозначно в базу знаний! Сам недавно такое проделывал!
Представляю сколько времени данная статья сэкономит людям!
Большое спасибо!

От себя добавлю-проверку проще делать по шагам:
1. Померить нет ли обрыва, вытащив зеленый разъем (два крайних контакта). Если есть обрыв-выяснить где именно, отсоединив и проверив отдельно спинку.
2. Если обрыва нет, то можно подать 12 вольт на крайние контакты разъема и убедиться, что сиденье нагревается.
3. Остается либо контроллер (еще раз огромное спасибо Вадиму aka mesaux за инструкцию по ремонту), либо блок между селектором акпп и магнитолой.
  •  
  • +1
28-10-2015 
28-10-2015 
За какие грехи!?
Ровно месяц, как сделал подогрев сидения (при этом живой контроллер перекинул на водительское с пассажирского, ну и восстановленный поставил, естественно, пассажиру).
Сегодня водительское греет, но не выключается! Причем огонек панели не гаснет, когда рукояткой щелкаешь в положение "выкл". И, поскольку я там уже плавал, с высокой степенью вероятности могу предположить неисправность микросхемы контроллера в виде пробоя питания на линию управления (отчего и горит огонек на панели при разомкнутом управлении). Подробности позже, а мирозданию спасибо. Вот нечем было заняться..

_________________

Останавливаться все же приходится, чтобы заменить колодки.

  •  
  • +1
28-10-2015 
28-10-2015 
Может масса где-то пропадает?

_________________

***************
Лучше молчать и слыть дураком,
чем заговорить и сразу развеять все сомнения в этом......

  •  
28-10-2015 
28-10-2015 
А за выключени(размыкание) разве не кнопка-регулятор около АКПП отвечает?
  •  
29-10-2015 
29-10-2015 
Кнопка, совмещенная с вертушкой, делает две весчи: при щелчке подает 12В на регулятор и на линию "вкл" для контроллера (после переделки исключена за ненадобностью), а регулятор подает на линию управления напряжение пропорциональное повороту регулятора. При обратном пробое питания в котроллере все это дело имеет питание через этот пробой, уже со стороны контроллера, независимо от положения выключателя. Поэтому и горит огонек, это можно проследить по схеме (ссыль в предыдущем посте)
Теперь по порядку: помчался домой, решив не откладывать и по пути на светофоре подумалось - а не потрогать ли? Моя ладонь с трудом входит в щель под сидением, но дотянуться я смог кончиками пальцев - и за малым не обжегся - блок уже начал течь. пришлось по пути встать на площадку посвободнее, вывернуть болты и подняв сидение, вырвать этот чертов контроллер - и это оказалось не так просто - зеленый разъем уже начал интегрироваться в корпус, я успел в самый раз.
Фото анфас нормального и потекшего контроллеров:
Подогрев сидений ( ремонт, замена, вопросы)
И профиль:
Подогрев сидений ( ремонт, замена, вопросы)
Вынуть разъем удалось, лишь сломав корпус блока, и чуть пострадала его крышка, но не смертельно:
Подогрев сидений ( ремонт, замена, вопросы)
Вот как оно все было - хорошо видна достойная микросхема VN570 (слава разработчикам STMicroelectronics), указан красным разрез (исключение среднего резистора) и желтой стрелкой - резистор 50 Ом, который надо бы проверить, (но можно и просто закоротить, новая микросхема имеет требуемые цепи внутре):
Подогрев сидений ( ремонт, замена, вопросы)
Восстановленная и переделанная плата: установлен ключ AUIPS6021, отрезан средний резистор со стороны элементов (место разреза указано красной стрелкой на пред фото, исполняется острым кончиком канцелярского ножа), установлены резисторы 7.5 кОм (не нашел выводной, поставил СМД) и 10 кОм (его можно поставить и так - отличается от рекомендаций предыдущего поста) :
Подогрев сидений ( ремонт, замена, вопросы)
Корпус, сломанный при разборке, склеил суперклеем, следы от зеленого разъёма вырезал ножом (защелка с другой стороны и не пострадала. На фото видны следы отчаянного применения отвертки чтоб выдрать прилипший разъем. деформация позволила поместить все внутрь штатно, пакостный внешний вид пусть будет на совести родителей такого решения:
Подогрев сидений ( ремонт, замена, вопросы)
Мораль: элементарная техническая задача регулирования температуры вовсе не требовала разработки заказной микросхемы, тут Тойота слегка перепонтила, как и в случае со штатной магнитолой - этим куском головной боли, который будучи умнее всех устройств машины, в итоге пошел на помойку в силу несостоятельности (тупой и глючный дисковод, ненужная кассета, эпичнейший перевод в ФМ и обилие ячеек памяти станций).
Занятный нюанс - примененная микросхема имеет защиту от переполюсовки (косвенно определяется по окружающим элементам). В новую микросхему эта функция встроена, исполняется она дубовато - замыканием при переполюсовке и в итоге защитой предохранителем.
Блин, скажите мне, какие такие нереальные воздействия может иметь этот блок (и переполюсовку в том числе) - находясь под нежной попой водителя - ну почти что у Бога за пазухой!
Но! теоретически у нас есть возможность загореться на ходу - предохранитель этих цепей достаточно могучий, а контроллер, как мы видим - имеет склонность к пожару и очевидно не имеет собственных защит от разогрева.

Теперь греет и регулируется - на минимуме греет очень деликатно, на максимуме не перегревает, норм. Корпуса контроллеров в работе холодные.
[/занавес]

_________________

Останавливаться все же приходится, чтобы заменить колодки.

  •  
  • +7
15-11-2015 
15-11-2015 
Здравствуйте! Когда-то писал о своей проблеме, но ответа не получил. Увидел последние сообщения тов. mesaux, вселилась надежда, что мне всё же помогут)
ZORRO22 писал(а):
Пт Янв 25, 2013 06:06 pm 
Здравствуйте, уважаемые лексусоводы! Поставил сиденья от Lexus RX/HARRIER II (2003-2009) ( не уверен что 2е поколение, но по электросхеме и цветам проводов сделал вывод о их принадлежности к RX-2) в жигули первой серии. Надеюсь на вашу помощь в подключении подогрева сидений. Можно ли это осуществить, не имея блока регулировки подогрева (того что с крутилками)? Где вообще находятся клеммыколодки нагревательных элементов в сиденьях?
Подогрев сидений ( ремонт, замена, вопросы)
Подогрев сидений ( ремонт, замена, вопросы)

Водительское (левое)
Подогрев сидений ( ремонт, замена, вопросы)

Подогрев сидений ( ремонт, замена, вопросы)

Подогрев сидений ( ремонт, замена, вопросы)
Подогрев сидений ( ремонт, замена, вопросы)
в правом есть вот такая колодка, она и есть на подогрев? А в левом такой нет..
Подогрев сидений ( ремонт, замена, вопросы)
какие-то непонятные провода.. (?)
Подогрев сидений ( ремонт, замена, вопросы)
желтая колодка судя по всему на airbag, а белая?
Подогрев сидений ( ремонт, замена, вопросы)
схема
Подогрев сидений ( ремонт, замена, вопросы)
photo.qip.ru/us...674472/129971635/full_image/
сиденья с леворульного рекса - в левом есть блок на память положения сидений.
Очень надеюсь на вашу помощь, больше спросить не у кого..
В сиденьях были еще такие блоки:
Подогрев сидений ( ремонт, замена, вопросы)

Как я понимаю, это и есть блоки управления подогревом. Надпись на корпусе: TOYOTA 87501-AC010 DC-ST45ECU1 0N12S Но они ни к чему не подключены , из плоской фишки торчат срезанные провода - красный черный и два коричневых. есть подозрения, что они не отсюда, а коричневые=желтые на срезанном пучке на сиденье - на фото выше.
Подскажите, как мне всё это подключить, не имея "крутилок" штатных?
Хотя бы в режиме вклвыкл.
PS: электрорегулировки кстати подключил, паять умею, мультиметр имеется.
  •  
  • +1
16-11-2015 
16-11-2015 
TOYOTA 87501-AC010 - это блоки управления подогревом.
на мои непохоже (явно посвежее лет на 5), но принцип остался тем же.
Насколько можно видеть, как минимум один из них, слева, - не рабочий.
Срезанные провода на сидении - весьма вероятно, что идут на нагреватели, красный и черный - на спирали (сопротивление - несколько Ом, желтые - на термодатчик (около 4 кОм), если проследить провода дальше, то должен быть разъем подключения нагревателя спинки.
Похоже, что коричневые блока=желтые сидения. в таком случае белый разъем хвоста блока управления должен иметь ответную часть на сидении.
Если нет крутилок - то их все равно придется сделать, так? тогда необходимо найти в белом разъёме питание - по цветам, и управление - они меньше сечением.. соединить как предполагаем, и на линии управления подать на одну 12В, на другую управляющее напряжение от 7 до 12 вольт.
Подогрев сидений ( ремонт, замена, вопросы)
На схеме отмечено красным прямоугольником - здесь по схеме разъем блока с обрезанным хвостом, желтым - разнесенные части белого разъёма, в котором надо подключать управление и питание

_________________

Останавливаться все же приходится, чтобы заменить колодки.

  •  
  • +1
16-11-2015 
16-11-2015 
mesaux, спасибо Вам, что откликнулись!
mesaux писал(а):
если проследить провода дальше, то должен быть разъем подключения нагревателя спинки.
А разъем нагревателя спинки должен быть под подушкой внизу или внутри сидения?

Да, действительно, блоки управления повреждены - на левом отгорела микросхема NEC K3479 и корпус оплавлен, а на правом отгорела одна из ножек колодки на спирали/термодатчик (левая на фото) - что впрочем не страшно.
Подогрев сидений ( ремонт, замена, вопросы)
решил проверить его работоспособность. Белая колодка была удалена,
Подогрев сидений ( ремонт, замена, вопросы)
в ней 4 провода:
черный -6
красный - 5
зеленый - 1
коричневый - 4
Подогрев сидений ( ремонт, замена, вопросы)
далее проверил, жива ли вся эта труха, оказывается жива:
Подогрев сидений ( ремонт, замена, вопросы)
Подогрев сидений ( ремонт, замена, вопросы)
красный, черный - питание. при подсоединении зеленого или коричнего или обоих сразу к +12В получаем напряжение на контактах, соответствующих красному и черному проводам в подогревателе.
Резистора на 4 кОм не нашлось под рукой, но при замыкании средних контактов (желтые=коричневые провода на термодатчик) напряжение на крайних контактах пропадало (до отключения-включения зеленого или (и) коричневого провода к +), что как бы намекает о некоторой степени исправности блока подогрева. Вопрос: какое назначение управляющих зеленого и коричневого проводов?
Подогрев сидений ( ремонт, замена, вопросы)
зеленый - включение (+12В), коричневый - регулировка (7В-12В) - ? или я запутался..
  •  
17-11-2015 
17-11-2015 
На один из проводов подается +12 щелчком ручки регулирования (на схеме смотрите изображение выключателя). На второй провод подается напряжение через переменный резистор - регулирования уровня обогрева. На схеме цепь последовательная, но возможно достаточно будет и со средней точки переменного резистора подать напряжение управления в интервале от 7 до 12 в (под 12 понимается напряжение батареи.) Странноватое включение, никакой особой безопасности оно не дает. вероятно - наследственное. В своей схеме я исключил первый сигнал, поскольку нагреватель гарантированно выключен при снятии напряжения с цепи управления уровнем.

Разъем нагревателя спинки(обведен красным), врезанный в жгут, идущий в подушку, располагается между спинкой и подушкой - достаточно еще выше приподнять фартук подушки. Желтым - блок управления, сидящий на лепестке корпуса.
Подогрев сидений ( ремонт, замена, вопросы)

_________________

Останавливаться все же приходится, чтобы заменить колодки.

  •  
  • +3
Реклама для незарегистрированных пользователей. Зарегистрироваться в Клубе
Новая тема  
Все форумы  »  Клуб Lexus RX  » Lexus RX/HARRIER II (2003-2009)  » Электрика / Audio / Navi Правила форумов